广西大学学生公寓东31-35栋多功能室家具、设备配置方案征集公告
为了提高学生的住宿环境,完善多功能室的设备设施,提供丰富多彩的课余活动,我校拟对东31-35栋生活室、阅览室、劳动教育馆、健美操与民族舞蹈馆、乒乓球馆的家具、设备配置向社会公开征集设计方案,欢迎有资质、有能力的单位参与。现将有关事宜公告如下:
一、楼栋房间结构及布置要求
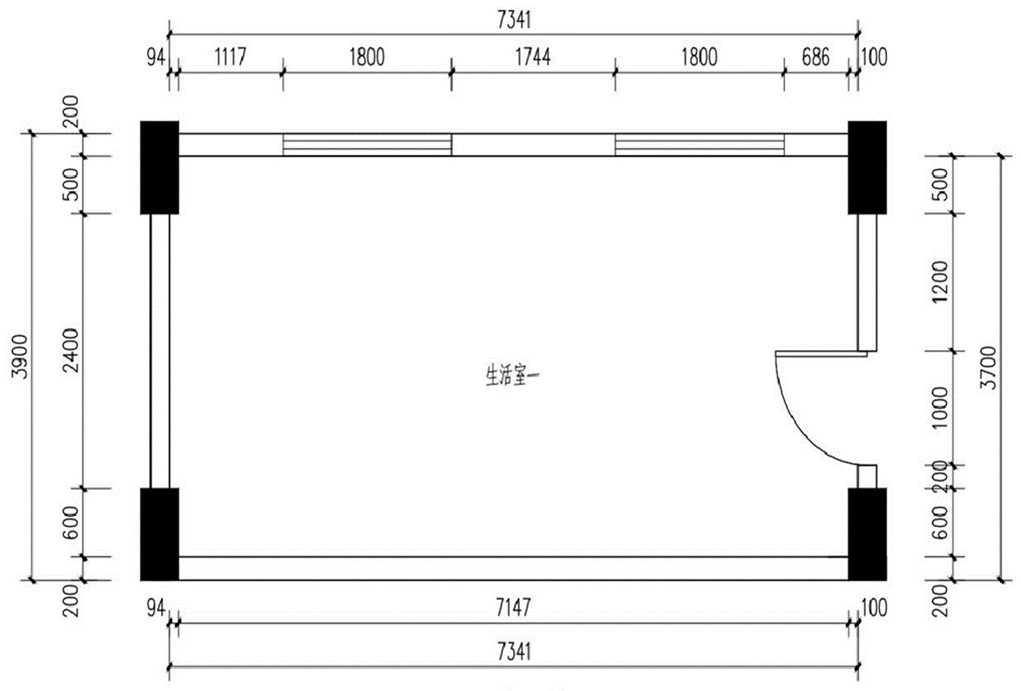
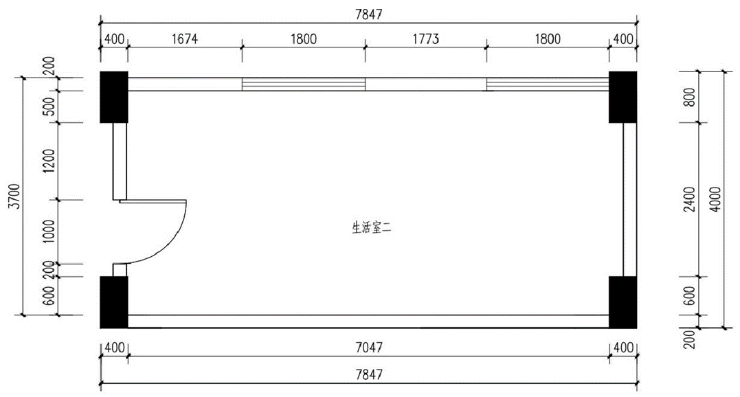
1.4间生活室:室内放置不锈钢折叠、餐桌、折叠实木餐椅、油烟机、电磁炉、远红外光波炉等基本家具电器,可根据室内空间适当增加其他家具。
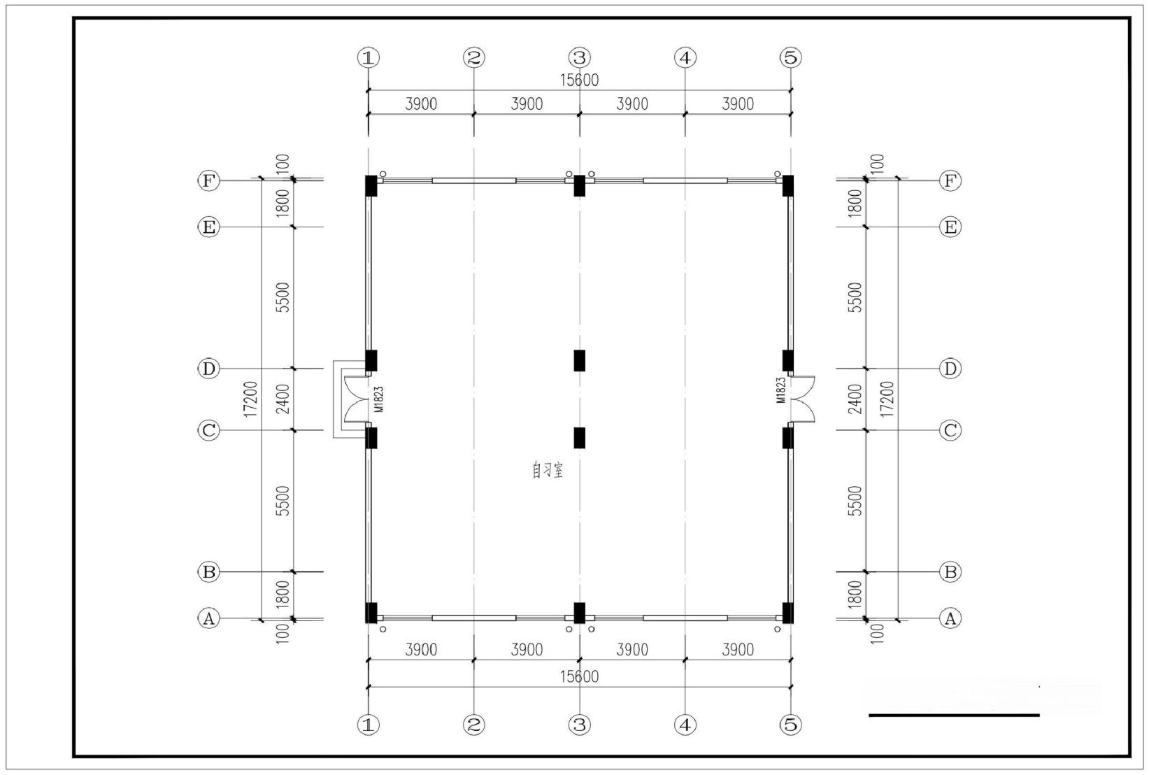
2.3间阅览室:室内放置阅览桌、实木凳子、阅览书架、4人休闲长椅、2人休闲长椅、单人休闲长椅、电视机等基本家具电器,可根据室内空间适当增加其他家具。
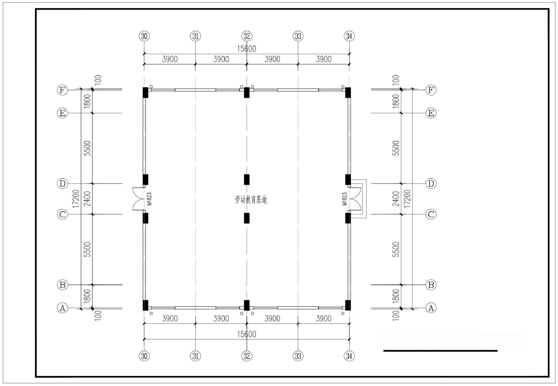
3.劳动教育馆:室内放置展示柜、展示桌、投射灯、展板、展台、宣传装饰等基本家具,可根据室内空间适当增加其他家具。
4.健美操与民族舞蹈馆:室内放置一体式音箱、话筒、泡沫垫、宣传装饰等基本家具电器,可根据室内空间适当增加其他家具。
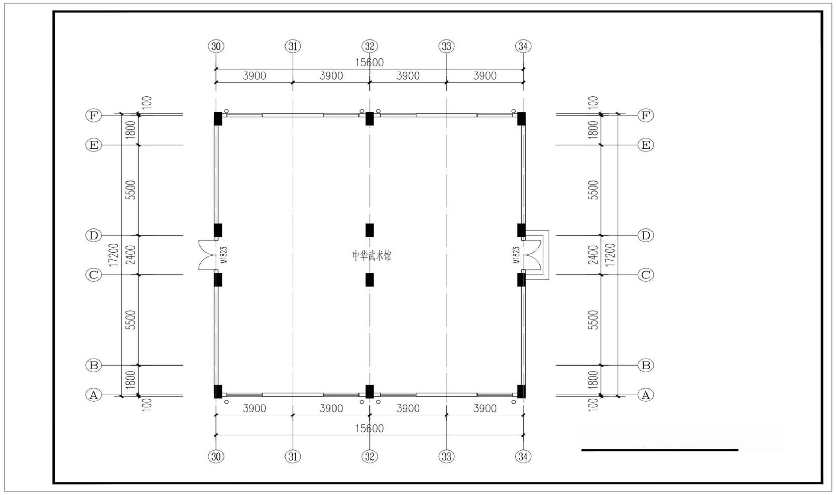
5.中华传统武术馆:室内放置一体式音箱、拳击器材、泡沫垫、宣传装饰等基本家具电器,可根据室内空间适当增加其他家具。
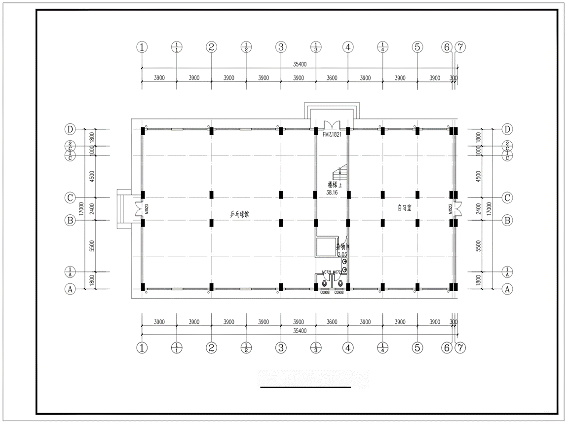
6.乒乓球馆:室内房间规格为:室内放置围挡、记分牌等基本家具,可根据室内空间适当增加其他家具。
二、资质条件(需加盖单位公章)
1.营业执照复印件一份;
2.法人及代理人身份证复印件一份(正反两面)。
3.法人授权书原件(若代理人与法人为同一人,无需提供此件)。
4.公司名称、联系人及联系方式。
三、应征文件包含以下内容(需加盖单位公章)
1.方案内容必须提供完整准确的家具配置方案(家具彩色图片、技术参数及规格、数量等)及效果图;提供完整准确的项目报价方案包括项目名称、产品名称、规格尺寸、技术参数、数量、预算单价和总价等方案文本内容。
2.室内效果图要求:按照所住人数摆放相应的家具,图内清晰可见家具及物品放置的效果,效果图需从正面、侧面等不同角度显示出不同的效果图片,家具使用功能、使用效果等可做出相应说明。
3.公司简介、相关业绩证明。
4.公司生产能力的证明。
5.公司的生产设备图片。
本次征集方案费用自理,所有征集的方案将无偿提供给我校使用。我校将根据家具使用要求整合配置方案,形成实用又符合规定的综合方案,然后进入政府采购程序。
四、家具方案及效果图递交时间
1.应征人于8 月8日前将家具方案以PDF格式发送到gxdxxsgy@163.com邮箱,纸质版加盖公章后交至beats365亚洲版后勤基建处一楼服务前台。
2.联系人:黄老师;联系电话:0771-3231221。
beats365亚洲版后勤基建处
2024年8月2日
附件:东31-35栋生活室、阅览室、劳动教育馆、健美操与民族舞蹈馆、乒乓球馆平面图

31#生活室一 1:50

31#生活室二 1:50

32#乒乓球馆、自习室平面图 1:50



34#自习室 1:100

34#中华武术馆平面图 1:100

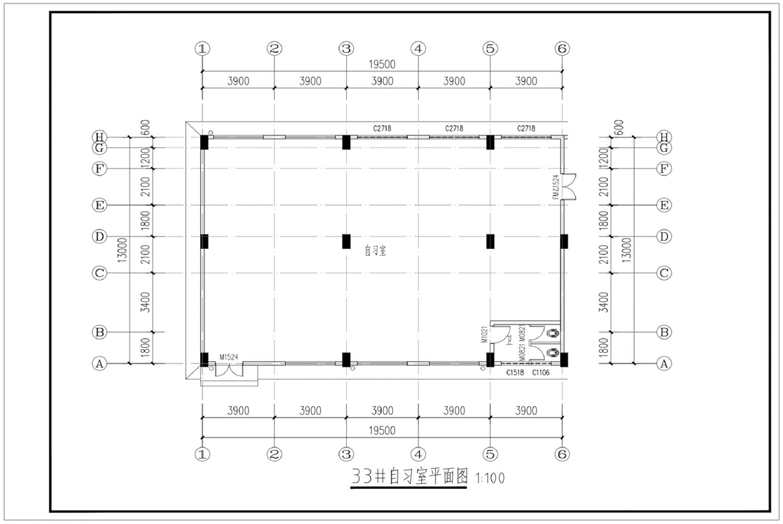
35#自习室平面图 1:100

35#劳动教育基地平面图 1:100